|
詳細介紹
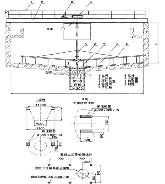
一、CGA型輻流式沉淀池中心傳動垂架式刮泥機
該型刮泥機是活性污泥法處理污水工藝過程中輻流式沉淀池的理想配套設備,主要功能為去除沉淀池中沉淀的污泥以及水面表層的漂浮物。中心進水,周邊出水,保證水流穩定
,該機具有傳遞扭距大,運轉平穩等優點。適用于污水處理廠有中心支墩的中小型沉淀池除泥排渣。
1.1
設備特征
該機型為中心支墩垂架式,中心傳動形式,小型采用數螺線整體刮板,中大型采用多板傾斜刮板;設有浮渣刮集和排除裝置,根據用戶要求可設置過載保護和微機系統聯網。
1.2 主要規格參數
|
型號 |
池徑Φ(m) |
池深H1(m) |
周邊線速度(m/min) |
驅動功率(kw) | |
CG8A |
8 |
2.5,3.0,3.5 |
1.0 |
0.55 | |
CG10A |
10 |
2.5,3.0,3.5 |
1.1 |
0.75 | |
CG12A |
12 |
2.5,3.0,3.5 |
1.2 |
0.75 | |
CG14A |
14 |
2.5,3.0,3.5 |
1.3 |
1.1 | |
CG16A |
16 |
2.5,3.0,3.5 |
1.4 |
1.1 | |
CG18A |
18 |
2.5,3.0,3.5 |
1.5 |
1.5 | |
CG20A |
20 |
2.5,3.0,3.5 |
1.6 |
1.5 | |
CG25A |
25 |
2.5,3.0,3.5 |
2.0 |
2.2 |
|
二、CGC型輻流式沉淀池半橋式周邊傳動刮泥機
CG-C型輻流式沉淀池半橋式周邊傳動刮泥機,是活性污泥法處理污水工藝過程中沉淀池的理想配套設備,適用于一沉池或二沉池,主要功能是為去除沉淀池中沉淀的污泥以及水面表層的漂浮物。一般適用于大中池徑沉淀池。周邊傳動,傳動力矩大,而且相對節能,中心支座與旋轉桁架以鉸接的形式連接,刮泥機產生的扭矩作用于中心支座時即轉化為中心旋轉軸承的圓周磨擦力,因而受力條件較好,中心進水,排泥,周邊出水,對水體的攪動小,有利于污泥的去除。
2.1 主要技術參數
|
型號規格 |
池徑D(m) |
標準池徑(m) |
池深H(m) |
周邊線速度(m/min) |
驅動功率(kw) | |
CG10C-20C |
10-20 |
15 |
3.5 |
~2 |
0.37 | |
20 |
3.5 |
~2 |
0.37 | |
CG20C-30C |
20-30 |
22 |
3.5 |
~2 |
0.37 | |
24 |
3.5 |
~2 |
0.55 | |
26 |
3.5 |
~2 |
0.55 | |
28 |
4.0 |
~2 |
0.55 | |
CG30C-40C |
30-40 |
30 |
4.0 |
~2 |
0.55 | |
35 |
4.0 |
~3 |
0.75 | |
40 |
4.5 |
~3 |
1.1 | |
CG50C |
50 |
50 |
4.5 |
~3 |
1.5 |
|
三、CGD型沉淀池中心傳動懸掛式刮泥機
|
 |
該刮泥機,一般應用于污水處理工程的輻流式沉淀池中(無中心支墩),完成排泥及除渣工作。 本類設備適于小型的初沉池,它結構簡單,排泥效率高,是一種理想的排泥設備。 |
3.1 規格參數
|
型號 |
池內徑( m ) |
池深( m ) |
周邊線速度(m/min) |
驅動功率(kw) | |
CG4-10D |
4-10 |
3.0-3.5 |
0.6-1.5 |
0.37 | |
CG12-16D |
12-16 |
3.5-4.0 |
1.3-2.0 |
0.75 | |
CG18-20D |
18-20 |
4.0-4.5 |
2.0-2.5 |
1.5 |
|
3.2 結構圖
四、BX型平流池泵吸式吸泥機
適用于給水平流沉淀池,排水二次沉淀池等的機械排泥。該機可以克服污泥比重小,含砂量大,其它設備難以刮集的困難,能將沉淀于池底的污泥經吸泥管及泵排出池外,對于有浮渣的沉淀池可同時在水面進行撇渣。采用液下排污泵排泥,污泥通過能力強,無堵塞、無泄漏;往返工作,邊行進邊排泥,排泥效率高,并可調節排泥量;根據需要既可間歇運行,也可連續運行;吸口扁嘴吸口和圓吸口,,并可根據需要在兩吸口之間安裝集泥刮板;集電方式可選用電纜卷筒,懸掛式移動電纜,滑觸線三種方式;機械電器雙重過載保護,運行安全可靠;操作簡單,可實現遠程控制。
4.1 技術規格
|
參數型號 |
池寬(B)(mm) |
軌距(mm) |
池深(m) |
驅動功率(kw) |
行走速度m/min | |
BX8.4 |
8000 |
b+a |
3-5 |
0.37*2 |
-1 | |
BX12.4 |
12000 |
b+a |
3-5 |
0.37*2 |
-1 | |
BX16.4 |
16000 |
b+a |
3-5 |
0.55*2 |
-1 | |
BX20.4 |
20000 |
b+a |
3-5 |
0.75*2 |
-1 |
|
4.2 結構圖
五、HX型行車式虹吸泥機
行車式虹吸泥機,用于污水處理廠平流二沉淀池,將沉降在池底的污泥刮集至吸泥口通過虹吸,將污泥排除池外。
 |
 |
|
1、排渣系統 2、驅動裝置 3、抽真空系統 4、電控系統 5、虹吸裝置 6、箱式梁 7、軌道組成及行程控制系統。 |
5.1 設備特征
1、結構簡單、重量輕。 2、維護簡單方便,運行費用低。 3、減速機采用軸裝式減速機,安裝方便,結構簡單緊湊、效率高。 4、電氣元件均采用戶外型,安全可靠,可隨機控制或遠程控制。
5.2 規格參數
|
型號規格 |
池寬D(m) |
標準池寬(m) |
池深H(m) |
行車速度(m/min) |
驅動功率(kw) |
|
HX8-14 |
8-14 |
8 |
3.5-5.0 |
~1.0 |
0.37×2 |
|
12 |
|
HX16-20 |
16-20 |
16 |
3.5-5.0 |
~1.0 |
0.55×2 |
|
18 |
|
20 |
|
HX22-26 |
22-26 |
22 |
3.5-5.0 |
~1.0 |
0.75×2 |
|
24 |
|
26 |
|
HX28-30 |
28-30 |
28 |
3.5-5.0 |
~1.0 |
1.1×2 |
|
30 |
|
六、JBX型行車式虹吸泥機
行車式虹吸泥機,用于污水處理廠平流初次沉淀池,將沉降在池底的污泥通過泵吸,排除池外。
 |
 |
|
1、驅動裝置 2、電纜滾筒 3、電控箱 4、吸泥機 5、排泥管 6、液下泵 7、大梁 8、軌道及行程控制 |
6.1 設備特征
1、結構簡單、重量輕。 2、維護簡單方便,運行費用低。 3、減速機采用軸裝式減速機,安裝方便,結構簡單緊湊、效率高。 4、電氣元件均采用戶外型,安全可靠,可隨機控制或遠程控制。
6.2 規格參數
|
型號規格 |
池寬D(m) |
標準池寬(m) |
池深H(m) |
行車速度(m/min) |
驅動功率(kw) |
|
JBX8-14 |
8-14 |
8 |
3.5-5.0 |
~1.0 |
0.37×2 |
|
12 |
|
JBX16-20 |
16-20 |
16 |
3.5-5.0 |
~1.0 |
0.55×2 |
|
18 |
|
20 |
|
JBX22-26 |
22-26 |
22 |
3.5-5.0 |
~1.0 |
0.75×2 |
|
24 |
|
26 |
|
JBX28-30 |
28-30 |
28 |
3.5-5.0 |
~1.0 |
1.1×2 |
|
30 |
|
七、CGB型沉淀池周邊傳動刮泥機
輻流式沉淀池周邊傳動刮吸泥機包括自吸式、虹吸式、自吸與虹吸結合式等幾種方式,一般應用于污水處理工程的輻流式二次沉淀池中(有中心支墩),完成排泥及除渣工作。
7.1 設備特征
該種機型為中心支墩,雙周邊傳動其傳動力矩大節能,采用中心進水和排泥,周邊排水,保證水流均勻。利用液位差自吸式排泥,設有浮渣刮集排除裝置和過載保護。
7.2 規格參數
|
參數型號 |
池內徑(m) |
池深(m) |
周邊線速度(m/min) |
驅動功率(kw) | |
CG20B |
20 |
3.5-4.5 |
-2.2 |
0.37 | |
CG25B |
25 |
4.0-5.0 |
-2.2 |
0.37 | |
CG30B |
30 |
4.5-5.5 |
-2.2 |
0.37 | |
CG40B |
40 |
4.5-5.5 |
-2.2 |
0.55 | |
CG45B |
45 |
4.5-5.5 |
-2.2 |
0.55 | |
CG50B |
50 |
4.5-5.5 |
-2.2 |
0.55 |
|
八、PGT型行車抬耙式刮泥撇渣機
行車抬耙式刮泥撇渣機常用于給水平流式沉淀池或排水初次沉淀池中污泥和浮渣的排除,主要功能是將沉淀池底的污泥刮集到池子一端的集泥坑內,以便定期排除,同時將水面浮渣刮集到集渣槽內。 設備的往返行駛與刮泥板的升降采用兩套獨立的驅動機構,通過電氣控制可實現多種動作組合;行車車輪的驅動方式有分別驅動(雙邊驅動)和集中驅動(長軸驅動)兩種布置方式;設備可選用雙速驅動,分別為刮泥行駛速度和回程速度;刮泥板與撇渣板既可以同行程工作,又可逆向工作;集電方式可選用電纜卷筒,懸掛式移動電纜,滑觸線三種方式;機械電氣雙重過載保護,運行安全可靠操作簡單,可實現遠程控制。
8.1 規格參數
|
型號規格 |
池寬 B(m) |
池深 H(m) |
驅動功率 (Kw) |
行走速度 (m/min) | |
PGT4-6 |
4-6 |
3.5-5.0 |
0.37 |
~1 | |
PGT7-10 |
7-10 |
3.5-5.0 |
0.75 |
~1 | |
PGT11-14 |
11-14 |
3.5-5.0 |
1.5 |
~1 |
|
九、NG-A、C、D型濃縮池中心傳動刮泥機
|
a) NG-A、C型濃縮池中心傳動刮泥機
NG型濃縮池刮泥機能進一步分離濃縮池污泥中的自由水份,以減少污泥的體積,提高污泥深度,將濃縮后污泥排除池外。NG型濃縮池刮泥機分A、C、D三種形式,其結構土建條件及特點與CG-A、C、D型輻流沉淀池刮泥機相同,但在刮臂上有柵條,以利于提高沉淀效率。 |
 |
a) 9.1 結構圖
b)
NG-D型濃縮池中心傳動刮泥機
 |
 |
|
1、溢流裝置 2、大梁及欄桿 3、進口管4、傳動裝置 5、電氣箱 6、穩流筒7、主軸8、浮渣耙板 9、刮集裝置 10、水下軸承11、小刮刀 12、渣斗 13、浮渣耙板(中心傳動懸掛式) |
9.2 NG-A、C及D型濃縮池中心傳動刮泥機規格參數
|
型號規格 |
池徑D(m) |
池深H(m) |
周邊線速度(m/min) |
驅動功率(KW) | |
NG6-10A、C、D |
6-10 |
3.0-3.5 |
0.7-2.0 |
0.37 | |
NG12-20A、C、D |
12-20 |
3.5-4.0 |
1.0-2.0 |
0.55-0.75 | |
NG22-35C |
22-35 |
3.5-4.0 |
2.0-3.0 |
0.55-0.75 |
|
|